Мрієте про ідеальний заміський дім? Хочете, щоб він був сучасним, комфортним і безпечним для всієї родини? Як експерт з ландшафтного дизайну, я розповім, як перетворити звичайну ділянку на затишний куточок. Ми розглянемо планування, зонування та вибір матеріалів. Разом створимо простір, де буде зручно кожному.

Цей проєкт – приклад вдалої трансформації заміської садиби для літньої пари, яка цінує комфорт та інновації. Замовники хотіли створити будинок, який відповідав би їхньому активному способу життя та потребам різних поколінь родини. Їм було важливо мати окремі зони для спілкування, відпочинку та роботи.

У результаті, садиба стала не лише сучасним і технологічним простором, але й улюбленим місцем для всієї родини. Тут кожен знайшов свій куточок для відпочинку та спілкування. Давайте розглянемо, як вдалося досягти такого результату.

Зонування простору: Створюємо ідеальний дім
Правильне зонування – ключ до комфортного проживання в заміському будинку. Важливо врахувати потреби всіх членів родини. Треба створити окремі зони для відпочинку, роботи та спілкування. Давайте розглянемо основні принципи зонування.
- Зона спілкування: Вітальня, їдальня та кухня мають бути об’єднані в один простір. Це сприяє спілкуванню та проведенню часу разом.
- Приватна зона: Спальні мають бути розташовані подалі від зони спілкування. Це забезпечить тишу та спокій для відпочинку.
- Робоча зона: Кабінет або робочий куточок потрібен для роботи або навчання. Важливо забезпечити тихе та добре освітлене місце.
- Зона для гостей: Якщо часто приймаєте гостей, варто передбачити окрему кімнату або гостьовий будиночок.
Важливо також враховувати вік мешканців. Для людей похилого віку варто передбачити зручний доступ до всіх приміщень. Уникайте сходів та високих порогів.
Дизайн заміського будинку 2026: Актуальні тренди
У 2026 році в дизайні заміських будинків переважають природні матеріали, мінімалізм та функціональність. Особлива увага приділяється енергоефективності та екологічності.
- Природні матеріали: Дерево, камінь, глина – ці матеріали створюють відчуття затишку та гармонії з природою.
- Мінімалізм: Простота та функціональність – основні принципи мінімалізму. Уникайте зайвих деталей та нагромадження меблів.
- Енергоефективність: Використовуйте енергозберігаючі технології, такі як сонячні панелі та теплові насоси. Це допоможе зменшити витрати на опалення та електроенергію.
- Екологічність: Обирайте екологічно чисті матеріали та меблі. Це допоможе створити здоровий та безпечний простір для проживання.
Експерти рекомендують використовувати світлі кольори в інтер’єрі. Вони візуально збільшують простір та роблять його більш світлим та затишним.
Сучасний інтер’єр: Інноваційні рішення
Сучасний інтер’єр – це поєднання стилю, комфорту та технологій. Використовуйте сучасні меблі, освітлення та побутову техніку.
- Меблі-трансформери: Це ідеальне рішення для невеликих приміщень. Меблі-трансформери можуть виконувати кілька функцій одночасно. Наприклад, диван-ліжко або стіл-трансформер.
- Розумне освітлення: Система розумного освітлення дозволяє регулювати яскравість та колір освітлення. Це допомагає створити комфортну атмосферу в будь-який час доби.
- Інтелектуальна побутова техніка: Інтелектуальна техніка полегшує побут та робить його більш комфортним. Наприклад, роботи-пилососи, пральні машини з дистанційним керуванням та холодильники з функцією самостійного замовлення продуктів.
Не перевантажуйте інтер’єр зайвими деталями. Важливо дотримуватися балансу між стилем та функціональністю.

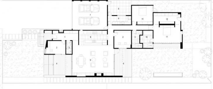
У цьому проєкті вхідна група обладнана зручною лавою для взуття. Також передбачено спеціальне приміщення для миття ніг або взуття після пляжу. До будинку прибудований гараж на дві машини з потаємним входом на кухню. Це дуже зручно для перенесення покупок з машини.
Планувальні рішення для людей похилого віку
Планування будинку має бути максимально комфортним для людей похилого віку. Важливо уникати великих відстаней та забезпечити легкий доступ до всіх приміщень.
- Одноповерхове планування: Якщо можливо, оберіть одноповерхове планування. Це уникне необхідності підніматися сходами.
- Широкі дверні отвори: Забезпечте широкі дверні отвори (не менше 90 см). Це полегшить пересування на візку.
- Відсутність порогів: Уникайте порогів та перепадів висоти. Це зменшить ризик падінь.
- Зручна сантехніка: Встановіть унітаз з високим сидінням та поручні в ванній кімнаті.
Експерти радять використовувати неслизьке покриття для підлоги. Це зменшить ризик падінь.

Найбільше приміщення в будинку – це вітальня, яка поєднана з кухнею та їдальнею. Вона має два виходи на тераси, як з фасаду будівлі, так і з внутрішнього двору.
Зонування простору для різних поколінь
Важливо враховувати потреби різних поколінь родини. Літнім людям потрібен спокій та тиша, а молодим – простір для активного відпочинку та розваг.
- Віддалені спальні: Розташуйте спальні літніх людей подалі від загальних приміщень. Це забезпечить їм тишу та спокій.
- Робочий кабінет для онуків: Обладнайте робочий кабінет для онуків недалеко від входу до будинку. Це дасть їм можливість зосередитися на навчанні.
- Зона для ігор та розваг: Створіть окрему зону для ігор та розваг для дітей. Це може бути ігрова кімната або дитячий майданчик на вулиці.

Господарська спальня максимально віддалена від загальних приміщень. Люди похилого віку можуть відпочивати, а молодші покоління не будуть їм заважати. Також у будинку сплановано два робочі кабінети: один для онуків – недалеко від входу до будинку, і другий – для господаря будинку, поряд зі спальнею.

Оздоблювальні матеріали та стиль інтер’єру
Вибір оздоблювальних матеріалів та стилю інтер’єру – це важливий етап у створенні комфортного та затишного будинку. Важливо враховувати смаки всіх членів родини.
Оздоблювальні матеріали: Якість та екологічність
Обирайте дорогі та натуральні оздоблювальні матеріали. Вони не лише мають гарний вигляд, але й є безпечними для здоров’я.
- Дерево: Дерево – це класичний та екологічний матеріал. Воно створює відчуття тепла та затишку.
- Камінь: Камінь – це міцний та довговічний матеріал. Він додає інтер’єру солідності та елегантності.
- Тканина: Обирайте натуральні тканини, такі як льон та бавовна. Вони приємні на дотик та добре пропускають повітря.
Для обробки стін використовуйте фарби на водній основі. Вони не містять шкідливих речовин та є безпечними для здоров’я.
Стиль інтер’єру: Гармонія та комфорт
Обирайте стиль інтер’єру, який відповідає вашому смаку та способу життя. Важливо створити гармонійний та комфортний простір.
- Класичний стиль: Класичний стиль – це елегантність та розкіш. Він характеризується використанням дорогих матеріалів, антикварних меблів та вишуканих деталей.
- Сучасний стиль: Сучасний стиль – це мінімалізм та функціональність. Він характеризується використанням простих форм, нейтральних кольорів та сучасних матеріалів.
- Скандинавський стиль: Скандинавський стиль – це затишок та природність. Він характеризується використанням світлих кольорів, дерев’яних меблів та текстилю з натуральних матеріалів.

У створенні інтер’єрів використані дорогі натуральні оздоблювальні матеріали нейтральних тонів. В інтер’єрах переважає білий колір та дерев’яні ліжка. Дизайнерам вдалося органічно поєднувати антикварні та сучасні меблі, стилізовані під шістдесяті роки минулого століття. У вітальні яскравим кольоровим акцентом є килим ручної роботи в етнічному стилі.


Дизайн заміського будинку 2026: Кольорова палітра
У 2026 році в дизайні заміських будинків переважають природні кольори та відтінки.
- Білий: Білий колір – це символ чистоти та свіжості. Він візуально збільшує простір та робить його більш світлим.
- Бежевий: Бежевий колір – це теплий та затишний колір. Він створює відчуття комфорту та спокою.
- Сірий: Сірий колір – це нейтральний та елегантний колір. Він добре поєднується з іншими кольорами та підходить для будь-якого стилю інтер’єру.
- Зелений: Зелений колір – це символ природи та життя. Він створює відчуття гармонії та спокою.
Не використовуйте занадто багато яскравих кольорів. Вони можуть викликати роздратування та втому.

За словами господарів, дизайнерам вдалося перевершити їх найсміливіші очікування і створити продуманий комфортний життєвий простір, який став улюбленим будинком для трьох поколінь сім’ї.

Отже, оновлення заміської садиби – це комплексна задача, яка потребує врахування багатьох факторів. Правильне зонування, вибір якісних матеріалів та стильний дизайн – це ключі до створення комфортного та затишного будинку для всієї родини. В результаті, ви отримаєте простір, який буде радувати вас довгі роки.

Прикольно, коли дім не просто хата, а прям простір для життя! Зони для всіх – це мастхев, особливо коли родина велика. Я б ще сонячні панелі додав, щоб взагалі еко-френдлі було.
Заміський дім…це ж цілий світ! Там можна зорі в долонях тримати і мріяти без меж. Хочу, щоб мій дім був схожий на ліс із вікнами, де кожна кімната – окрема казка. 🌿✨ І щоб пахло пирогом з яблуками!
Мій власний будиночок за містом – це прям мрія-мрія! Хочу величезні вікна, щоб бачити зорі, і щоб у дворі гамак був, де можна з друзями зависати до ранку! А ще басейн, звісно! 🤩
А я все думаю, що там такого – заміський дім. А тут цілий світ! Треба буде батькам показати, може, нарешті зважимось. І щоб обов’язково з внутрішнім двором, як тут кажуть. 😎
Вау, круто! Завжди мріяв про свій дім за містом, де можна з друзями тусити. Тепер хоч знаю, з чого починати, щоб батькам сподобалось! Треба показати їм цю статтю, може, нарешті зважимось? 🏡😎