Ми всі мріємо про затишну спальню. Але часто реальність – це хаос, де ліжко займає занадто багато місця. Давайте перетворимо вашу спальню на функціональний простір за допомогою ліжка-подіуму.
Ліжко-подіум – це не просто меблі. Це розумне рішення для економії простору. Воно поєднує спальне місце з додатковим функціоналом, таким як зберігання речей або зонування кімнати.
🧐 Види ліжок-подіумів: два підходи до комфорту
Існує два основних типи ліжок-подіумів. Кожен з них має свої переваги та підходить для різних потреб.
- З розташуванням спального місця НА подіумі. Це класичний варіант, що створює ефект піднесеного спального місця.
- З висувним ІЗ подіуму спальним місцем. Це ідеальне рішення для малогабаритних квартир.
Перший варіант чудово підходить для зберігання речей. У подіумі можна розмістити постільну білизну, сезонний одяг або навіть іграшки. Це, по суті, велика шафа, на якій розташований матрац.

Другий варіант – справжня знахідка для тих, хто цінує кожен сантиметр простору. Висувне ліжко дозволяє звільнити кімнату вдень. Однак, його складніше зробити самостійно. Для реалізації такого проєкту краще звернутися до фахівця. Але не варто засмучуватись, ми все одно розглянемо його особливості.
Якщо ви не впевнені у своїх силах, почніть з простого варіанту. Ліжко-подіум зі стаціонарним спальним місцем зробити набагато легше.

У 2026 році дизайн ліжок-подіумів вражає своєю різноманітністю. Можна знайти ідеальне рішення для будь-якого інтер’єру. Або ж створити свій унікальний проєкт. Отже, почнемо!
🛠️ Конструюємо ліжко-подіум своїми руками: покроковий гід
Підготовчий етап: планування – запорука успіху
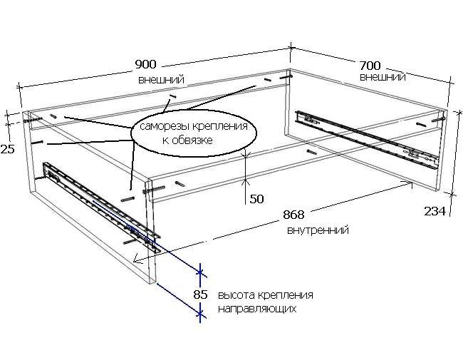
Перш ніж братися за інструменти, потрібно все спланувати. Створіть ескіз майбутнього ліжка-подіуму. На ньому повинні бути вказані всі розміри. Врахуйте висоту каркаса ліжка, матраца та коліщаток (якщо ліжко висувне). Це допоможе вам розрахувати оптимальну висоту подіуму.

Ширина подіуму визначається на ваш розсуд. Але вона не може бути меншою за ширину спального місця. Подумайте, чи плануєте ви вбудовувати ящики для зберігання. Також важливо врахувати навантаження, яке буде витримувати подіум. Від цього залежить вибір матеріалів та крок несучих балок. Експерти рекомендують використовувати якісні матеріали, щоб забезпечити міцність та довговічність конструкції.
🧐 Важливо знати: Зібрати висувне ліжко-подіум складніше, ніж стаціонарне. Якщо у вас немає досвіду, краще зупинитися на більш простому варіанті. Стаціонарна модель простіша у виготовленні та дозволяє виправити дрібні помилки.

Після того, як ескіз готовий, підготуйте необхідні інструменти. Вам знадобляться:
- Рулетка
- Олівець
- Рівень
- Пила (електрична або ручна)
- Шуруповерт
- Дриль
- Молоток
- Наждачний папір
Вибір матеріалів: міцність та екологічність
Для виготовлення ліжка-подіуму можна використовувати різні матеріали. Найбільш популярні:
- Дерево: екологічний та міцний матеріал. Найчастіше використовують сосну, дуб або бук.
- ДСП: дешевший варіант, але менш міцний. Важливо вибирати ДСП з низьким вмістом формальдегіду.
- Метал: надійний та довговічний матеріал. Металевий каркас забезпечить міцність конструкції.
Вибір матеріалу залежить від ваших уподобань та бюджету. Дерево створить атмосферу затишку та тепла. Метал підійде для сучасного інтер’єру. ДСП – це компромісний варіант між ціною та якістю.
Зверніть увагу на сертифікацію матеріалів. Вони повинні бути безпечними для здоров’я.
Етапи складання ліжка-подіуму: крок за кроком
- Збірка каркаса: Зберіть каркас подіуму згідно з вашим ескізом. Переконайтеся, що всі елементи надійно з’єднані.
- Обшивка каркаса: Обшийте каркас обраним матеріалом. Це може бути дерево, ДСП або гіпсокартон.
- Встановлення спального місця: Встановіть матрац на подіум. Якщо у вас висувне ліжко, встановіть механізм висування.
- Оздоблення: Задекоруйте ліжко-подіум на свій смак. Можна використовувати фарбу, лак, тканину або інші матеріали.
Під час складання ліжка-подіуму важливо дотримуватися техніки безпеки. Використовуйте захисні окуляри та рукавички. Працюйте в добре провітрюваному приміщенні.
Не перевантажуйте конструкцію. Це може призвести до її руйнування.
Дизайн ліжка-подіуму 2026: актуальні тренди
У 2026 році в тренді мінімалізм та функціональність. Ліжко-подіум має бути не тільки красивим, але й практичним. Особлива увага приділяється економії простору та організації зберігання. Популярні кольори – нейтральні: білий, сірий, бежевий.
Ось декілька актуальних трендів у дизайні ліжок-подіумів 2026:
- Вбудоване освітлення: Світлодіодні стрічки, вбудовані в подіум, створюють затишну атмосферу та підсвічують простір.
- Приховані ящики: Ящики для зберігання, які не видно зовні, допомагають підтримувати порядок у кімнаті.
- Натуральні матеріали: Використання дерева та інших натуральних матеріалів робить інтер’єр більш екологічним та затишним.
- Геометричні форми: Ліжко-подіум з чіткими геометричними формами виглядає стильно та сучасно.
Експерти прогнозують, що у 2027 році популярними будуть ліжка-подіуми з вбудованими зарядними пристроями для гаджетів та системою “розумний дім”. Це зробить використання спальні ще більш комфортним та функціональним.
Ліжко подіум для малогабаритної квартири: максимум простору
Ліжко-подіум – це ідеальне рішення для малогабаритної квартири. Воно дозволяє ефективно використовувати кожен сантиметр простору. У подіумі можна зберігати речі, а зверху розмістити спальне місце. Таким чином, ви отримуєте два в одному: ліжко та шафу. Це особливо актуально для однокімнатних квартир та студій.
Ось декілька порад щодо використання ліжка-подіуму в малогабаритній квартирі:
- Вибирайте світлі кольори: Світлі кольори візуально збільшують простір.
- Використовуйте дзеркала: Дзеркала також допомагають розширити простір.
- Не захаращуйте простір: Залишайте вільне місце для пересування.
- Використовуйте багатофункціональні меблі: Ліжко-подіум – це чудовий приклад багатофункціональних меблів.
Якщо у вас низька стеля, вибирайте невисокий подіум. Це допоможе уникнути відчуття тісноти.
Ліжко подіум з місцем для зберігання: порядок у домі
Ліжко-подіум з місцем для зберігання – це чудовий спосіб організувати порядок у домі. У подіумі можна зберігати одяг, постільну білизну, взуття, іграшки та інші речі. Це особливо корисно, якщо у вас мало місця для шаф. Ліжко-подіум дозволяє звільнити простір у кімнаті та зробити її більш затишною. За статистикою, наявність достатньої кількості місць для зберігання позитивно впливає на психологічний комфорт людини.
| Тип ліжка-подіуму | Переваги | Недоліки | Приблизна вартість (2026) |
|---|---|---|---|
| Стаціонарний | Простий у виготовленні, багато місця для зберігання | Займає багато місця | Від 8000 грн |
| Висувний | Економить простір, функціональний | Складний у виготовленні | Від 12000 грн |
| З підйомним механізмом | Зручний доступ до місця зберігання | Потребує якісної фурнітури | Від 10000 грн |
Ціни вказані орієнтовно та можуть змінюватися в залежності від матеріалів та складності конструкції. Вартість робіт по виготовленню ліжка-подіуму на замовлення може бути вищою. Рекомендується заздалегідь проконсультуватися з майстром та уточнити всі деталі.
Висновок
Ліжко-подіум – це чудове рішення для тих, хто хоче створити унікальний та функціональний інтер’єр. Воно дозволяє заощадити простір, організувати зберігання речей та додати кімнаті стилю. Зробити ліжко-подіум своїми руками не так складно, як здається. Головне – правильно спланувати та підготувати все необхідне. А якщо ви не впевнені у своїх силах, краще звернутися до професіоналів. У 2026 році ліжко-подіум – це не просто меблі, а інвестиція в комфорт та функціональність вашого дому.
Перед початком робіт переконайтеся, що стіни та підлога у вашій кімнаті рівні. Це важливо для правильної установки ліжка-подіуму.

Вау, крута ідея! Якраз думаю, як переробити свою кімнату. Ліжко-подіум – це ніби два в одному: і спати є де, і всі мої речі помістяться. Треба батькам показати, може, і погодяться на таку штуку.
Вау, ліжко-подіум – це просто космос! Давно мрію про таке, щоб всі мої речі нарешті мали своє місце. І щоб спати як на троні, а не просто на ліжку! Треба терміново переконати батьків, що це геніальна ідея! )
Прочитала про ліжка-подіуми і згадала свою кімнату в гуртожитку. От би туди такий! І спати зручно, і всі мої речі нарешті мали б своє місце, а не жили б де попало.
Прочитала про ліжка-подіуми і задумалась. Це справді може бути вихід для маленьких квартир. Особливо сподобалась ідея з висувним ліжком – вдень більше місця, а вночі комфортне спальне місце. Треба подумати, чи підійде воно мені.