Ми всі мріємо про відпочинок на природі. Але часто бачимо лише незручний простір, де складно розслабитись. Давайте разом перетворимо складний схил на витвір мистецтва. Дізнаємось, як створити затишний куточок просто неба.
Архітектор Даніель Айзерн створив будинок Meriterrani 32 в Іспанії. Він розташований у містечку Сан-Поль-де-Мар, на березі Середземного моря. Цей проєкт показує, як можна перетворити складну задачу на перевагу. Ландшафт тут постійно змінюється. Освітлення, атмосфера, кольори – все впливає на сприйняття. Будинок став частиною цього ландшафту, його продовженням. На думку експертів, такий підхід до архітектури стає все більш популярним у 2026 році.
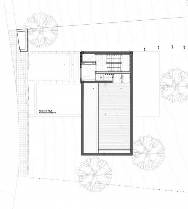
Довідка: Проєкт розпочався з будівництва на крутій ділянці. Ухил сягав майже 100%. Але звідси відкривався чудовий вид на море та сосновий ліс. Бюджет був обмежений. Ці фактори стали поштовхом для створення унікального рішення.
Ділянка, оточена соснами, визначила основну ідею. Ландшафт постійно змінюється. Архітектор вирішив не боротися з природою, а співпрацювати з нею. Розміри ділянки були невеликі. Рельєф – складний. Тому команда вирішила шукати “вставки” в ландшафт. Дерева мали відкривати вид і вписуватися в кожен поверх. Крона дерева ставала терасою для верхнього рівня. Так створили багаторівневу структуру. Кожен поверх живе своїм життям, маючи власний куточок природи. Такий підхід є прикладом екологічної архітектури.
🌳 Архітектура на межі можливого
Це призвело до створення споруди з великими консолями. Вони виступають у порожнечу, спрямовані в ліс і море. Здається, що будинок левітує серед дерев. Тераси та веранди об’єднують інтер’єр з екстер’єром. Межа між будинком і природою майже зникає. Мешканці відчувають себе частиною лісу, насолоджуючись сучасним комфортом. Будинок з видом на море 2026 – це більше не розкіш, а можливість.

Чи знали ви, що… Консолі створюють візуальний ефект. Але вони також мінімізують втручання в ландшафт. Фундамент займає мінімальну площу. Будинок “висить” у повітрі, не пошкоджуючи коріння дерев.
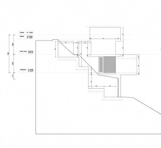
Будівля гармонійна у своїх об’ємах і матеріалах. Бетон, залізо, дерево та камінь – основні елементи. Їхні лінії підкреслюють характер кожного матеріалу. Бетон – міцний, дерево – тепле, метал – надійний, камінь – натуральний. Архітектура на крутому схилі потребує ретельного вибору матеріалів. Це допомагає створити збалансований образ.
Вся будівля – це діалог між порожнечею і наповненістю. Між матеріалами, зовнішнім і внутрішнім. Це пошук балансу між контрастними частинами. Це архітектура, яка змушує думати про зв’язок людини та природи. Сучасний дизайн консолей робить будинок унікальним.
✨ Інтер’єр як продовження екстер’єру
Внутрішній простір будинку продовжує його зовнішню концепцію. Панорамні вікна стирають межі. Вони впускають всередину ліс і море. Мінімалістичне оздоблення не відволікає увагу. Головну роль відіграє пейзаж за вікном. Тут ідеально виглядають лаконічні, але комфортні меблі. Уявіть зручний диван на терасі з видом на море. Він запрошує до відпочинку та споглядання.
Поширена помилка: Думати, що будівництво на складному рельєфі – це дорого. Проєкт Meriterrani 32 показує інше. “Недоліки” ділянки можуть стати її перевагами. Вони дозволяють створити унікальний об’єкт. Це як вибір меблів. Іноді кутовий диван вирішує проблему планування краще, ніж звичайний.
При виборі меблів для тераси враховуйте клімат України. Влітку буває спекотно, взимку – морозно. Меблі повинні бути стійкими до сонця, дощу та снігу. Обирайте матеріали, які не бояться вологи та перепадів температур. Зверніть увагу на меблі з металевим каркасом і текстилем, який швидко сохне.
| Матеріал | Функція в проєкті | Створений ефект |
|---|---|---|
| Бетон | Несуча конструкція, стіни | Надійність, основа |
| Залізо (Метал) | Огорожі, каркасні елементи | Легкість, безпека |
| Дерево | Оздоблення терас, елементи інтер’єру | Тепло, затишок |
| Скло | Панорамні вікна, огорожі | Прозорість, єднання з ландшафтом |
| Головний висновок | Поєднання матеріалів створює гармонійний образ. | |
Вибір матеріалів для будинку на схилі – це важливе рішення. Важливо враховувати не лише естетичні, але й практичні аспекти. Матеріали повинні бути довговічними та стійкими до впливу навколишнього середовища. Також варто звернути увагу на їхню екологічність.
Порада експерта: Обирайте матеріали з місцевих джерел. Це зменшить транспортні витрати та позитивно вплине на екологію. Також зверніть увагу на сертифікацію матеріалів. Вона підтверджує їхню якість та безпеку.
Фотогалерея проєкту

Простір навколо будинку Meriterrani 32 організований так, щоб максимально використовувати природні переваги ділянки. Тераси та балкони стають продовженням внутрішніх приміщень, створюючи плавний перехід між домом і природою. Тут можна облаштувати зони для відпочинку, обідів на свіжому повітрі та релаксації. Важливо правильно підібрати рослини для озеленення, щоб вони гармонійно вписувалися в ландшафт і не потребували складного догляду.

Для озеленення ділянки на схилі варто обирати рослини з розвиненою кореневою системою. Вони допоможуть зміцнити ґрунт і запобігти ерозії. Також варто враховувати орієнтацію ділянки відносно сонця. На сонячних ділянках краще висаджувати посухостійкі рослини. У тіні – тіньовитривалі.

Факт: Використання місцевих видів рослин не лише полегшить догляд за садом, але й сприятиме збереженню біорізноманіття регіону. Також варто звернути увагу на вертикальне озеленення. Воно допоможе створити додатковий простір для рослин і прикрасити стіни будинку.

Освітлення відіграє важливу роль в створенні атмосфери на ділянці. Варто використовувати різні типи світильників для підсвічування доріжок, рослин і архітектурних елементів. Важливо, щоб освітлення було не лише функціональним, але й естетичним. Воно повинно підкреслювати красу ландшафту і створювати затишну атмосферу ввечері.

При виборі світильників для ділянки на схилі варто звертати увагу на їхню вологостійкість і міцність. Вони повинні бути стійкими до впливу навколишнього середовища і безпечними у використанні. Також варто розглянути можливість використання сонячних світильників. Вони не потребують підключення до електромережі і є екологічно чистими.

Порада: Розміщуйте світильники так, щоб вони не засліплювали очі і не створювали надмірного освітлення. Краще використовувати м’яке, розсіяне світло. Також варто звернути увагу на кольорову температуру світла. Тепле світло створює затишну атмосферу, а холодне – більш функціональне.

Меблі для тераси повинні бути не лише зручними, але й стійкими до впливу навколишнього середовища. Обирайте меблі з матеріалів, які не бояться вологи, сонця і перепадів температур. Також варто звернути увагу на їхню вагу. Меблі повинні бути достатньо важкими, щоб їх не здуло вітром, але й не надто, щоб їх можна було легко пересувати.

Факт: Меблі з ротангу є популярним вибором для терас. Вони легкі, міцні і мають привабливий вигляд. Однак, ротанг не дуже добре переносить вологу. Тому меблі з ротангу краще використовувати на критих терасах або зберігати в сухому місці під час дощу.

Важливо створити комфортні умови для відпочинку на терасі. Розмістіть м’які подушки та пледи на меблях. Поставте парасольку або навіс для захисту від сонця. Додайте декоративні елементи, такі як вази з квітами, свічки або ліхтарики. Створіть атмосферу затишку та релаксації. Тоді ваша тераса стане улюбленим місцем для відпочинку.

Обираючи меблі для відкритого простору, слід зважати на особливості клімату України. Для регіонів з великою кількістю опадів варто віддавати перевагу матеріалам, які не піддаються корозії та гниттю. Для південних регіонів – матеріалам, стійким до вигорання на сонці.

При виборі меблів для тераси, зверніть увагу на їхню ергономічність. Меблі повинні бути зручними для сидіння та лежання. Важливо, щоб вони підтримували правильну поставу і не викликали дискомфорту.

Архітектура на крутому схилі вимагає особливої уваги до деталей. Важливо, щоб всі елементи ландшафту гармонійно поєднувалися між собою і створювали єдиний образ. Також варто враховувати потреби мешканців будинку. Тераса повинна бути функціональною і зручною для використання.

Не забувайте про безпеку. Тераса повинна бути обладнана перилами та огорожами, щоб запобігти падінням. Також варто встановити освітлення на сходах та доріжках, щоб уникнути травм у темний час доби.

Проєкт Meriterrani 32 – це приклад того, як можна створити унікальний будинок на складному рельєфі. Він гармонійно поєднує сучасну архітектуру з красою природи. Цей будинок надихає на створення затишних і функціональних просторів, які дарують радість і комфорт.

Сучасні технології дозволяють будувати будинки на схилах будь-якої крутизни. Головне – правильно розрахувати навантаження на фундамент і використовувати якісні матеріали.

Вау, круто, коли складність перетворюється на фішку! Раніше думав, схил – це купа проблем, а тут цілий витвір мистецтва! Може, й на нашій дачі з яру можна щось таке замутити? Треба показати батькам, щоб не скиглили, що ділянка “не така” 😎 )
Схил… це як виклик для мрій! Коли бачиш крутий берег, уявляєш тераси, що спускаються до моря, наче сходи в інший світ. І на кожній – квіти, плескіт хвиль, розмови з вітром… Відчуття, ніби сам твориш казку, живучи в ній. ✨
Вау, це просто магія якась! Хто б міг подумати, що такий крутий будинок можна вліпити прямо в схил? Тепер мрію про свій такий, щоб прокидатись і бачити море! Може, колись і в мене буде такий райський куточок.✨
Схил… ну, ок. Головне, щоб дощ не змив мій лежак з видом на море. А взагалі, мені б басейн і коктейль, а не оце от все “злиття з природою”. 🙄